Authentisches Dorfhaus im Herzen von Dolceacqua mit überdachter Terrasse
Übersicht
- 4
- 2
- 112 m²
- 7
- 21 m²
Beschreibung
Im Herzen des historischen Ortskerns Terra von Dolceacqua liegt dieses sorgfältig restaurierte ligurische Dorfhaus. Authentische Details wie Gewölbedecken und Natursteinmauern treffen hier auf modernen Wohnkomfort – ein harmonisches Zusammenspiel von Geschichte und Gegenwart.
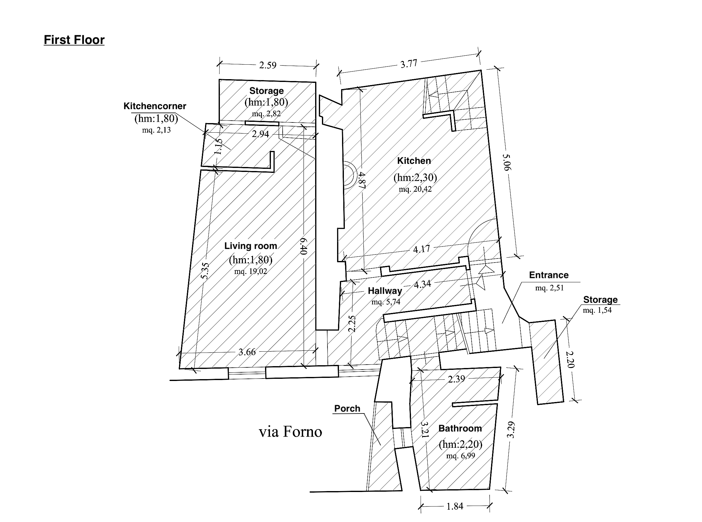
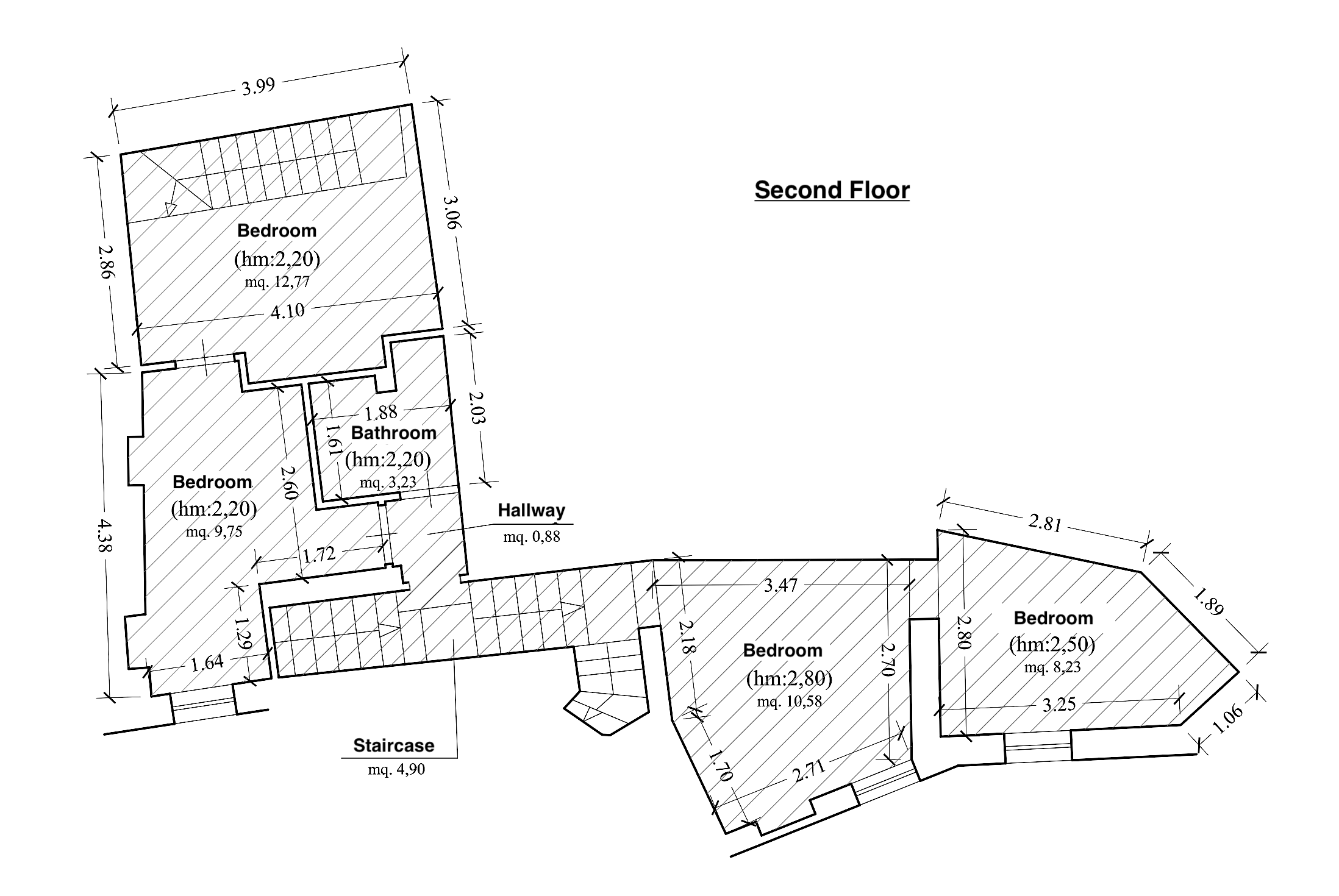
Auf rund 112 m² Wohnfläche, verteilt auf drei Ebenen, bietet das Haus ein vielseitiges Raumkonzept: ein großzügiger Wohnbereich mit integrierter Küchenzeile, eine gemütliche Wohnküche, vier Schlafzimmer (darunter ein Durchgangszimmer), zwei moderne Duschbäder sowie einen praktischen Abstellraum. Ergänzt wird das Raumangebot durch einen ca. 25 m² großen Kellerraum im Erdgeschoss, der zusätzlichen Stauraum oder vielfältige Nutzungsmöglichkeiten bietet.
Besonders einladend ist die überdachte Terrasse von etwa 21 m², die einen herrlichen Blick über die Dächer des Ortes und in die sanften Hügel der Umgebung eröffnet – ein idealer Platz für entspannte Stunden im Freien. Die Anschlüsse für eine Außenküche sind bereits vorbereitet; auch eine Verglasung der Terrasse wäre möglich.
Das Haus wurde 2003 mit viel Liebe zum Detail und im traditionellen Stil aufwendig restauriert.
Originalmaterialien wie antike Böden, freigelegte Steinwände und Rundbogendecken verleihen den Räumen eine unverwechselbare, warme Atmosphäre. Gleichzeitig sorgen moderne Haustechnik, eine Zentralheizung mit Stadtgasanschluss und gepflegte Bäder für zeitgemäßen Komfort.
Dolceacqua zählt zu den schönsten und lebendigsten Orten im ligurischen Hinterland. Neben der charmanten mittelalterlichen Atmosphäre bietet der Ort eine hervorragende Infrastruktur mit zahlreichen Restaurants, kleinen Läden, Banken, einer Grund- und Mittelschule, einer Poststelle sowie ärztlicher Versorgung – alles bequem zu Fuß erreichbar.
Ganzjährig bereichern kulturelle Veranstaltungen das Leben im Dorf. Umgeben von Weinbergen, Olivenhainen und herrlichen Wanderwegen ist Dolceacqua ein Paradies für Naturliebhaber, Aktivurlauber und Genießer. Die Küste mit den Badeorten Bordighera und Ventimiglia ist in nur ca. 15 Autominuten erreichbar, ebenso die französische Grenze. Sanremo liegt etwa 35 Minuten entfernt, Monaco rund 45 Minuten. Der internationale Flughafen Nizza ist in ca. einer Stunde bequem zu erreichen – ideal für Pendler und internationale Besucher.
Provision
Die Provision, zahlbar vom Käufer, beträgt 3,66% des Kaufpreises inklusive MwSt.
Adresse
Google Maps öffnen-
Stadt: Dolceacqua
-
Bundesland/Region: Ligurien
-
Region: Imperia
-
Land: Italien
Details
Aktualisiert am Mai 4, 2026 beim 12:39 p.m.-
ID der Immobilie DA 1053
-
Preis 215.000€
-
Grundfläche 112 m²
-
Badezimmer 4
-
Zimmer gesamt 7
-
Badezimmer 2
-
Art der Immobilie Dorfhäuser
-
Status Neu, zu kaufen
-
Objektzustand Gepflegt
-
Letzte Renovierung 2003
-
Terrasse 21 m²
-
Entfernung Infrastruktur Im Ort
-
Entfernung Meer 8 km
-
Nächster Flughafen Nizza 59 km
-
Nutzfläche 25 m²
Eigenschaften
Energieklasse
-
Energieklasse: F
-
Globaler Energieeffizienzindex: 87,85 kWh/m²a
- A+
- A
- B
- C
- D
- E
- 87,85 kWh/m²a | Energieklasse FF
- G
- H
Ähnliche Einträge
Trinità (Camporosso) – Dorfwohnung mit Nähe zu Frankreich
Authentisches Dorfwohnung mit Veranda, Garten und guter Anbindung an Ventimiglia und die Côte d’Azur
Rezzo (Imperia) – Dorfhaus mit Garten zum Verkauf
Charmantes Natursteinhaus mit Garten, Panoramaterrasse und Garage in sonniger Lage
Isolabona – Dorfhaus mit Terrasse zum Verkauf
Stilvolles Dorfhaus mit Terrasse in ruhiger Altstadtlage
Dolceacqua – Dorfwohnung mit Terrasse zum Verkauf
Wohnen mit Altstadtflair über den Dächern der historischen Altstadt













