Apricale – Country House close to the Village for sale
- 615.000€
Contemporary Country house with romantic Garden in walking distance to the village
Panoramica
- 2
- 2
- 113 m²
- 4
- 5000 m²
Descrizione
This stunning country house built to a very high standard in 2010 and clad with natural stones, lies nestling in the picturesque countryside of the Ligurian hinterland. Designed by the current owners as the modern interpretation of a traditional Ligurian country house, it offers 130 m2 (180 m2 commercial area) in overall dimensions. The 5000 m2 grounds benefit from an unusual location only 600 m away and in walking distance to the charming village centre of Apricale. The wide south facing terraces have been lovingly designed by a landscape gardener who managed to create a magically romantic ambience. The entire property enjoys unobstructed views across the Merdanzo Valley and all the way to Perinaldo and the Monte Bignone.
The spacious and well-designed living area is split over two floor levels. The open entrance hall features an elegant marble staircase with open space and leads straight into the light flooded living area. The approx. 50 m2 open space connects a comfortable living room with the dining area and the modern, fully equipped kitchen. The kitchen with a central island and marble work top with integrated gas hob invites to cook whilst enjoying views into the garden.
At the rear end of the ground floor a small hall connects with a studio, a shower room and a spacious (17 m2) utility room.
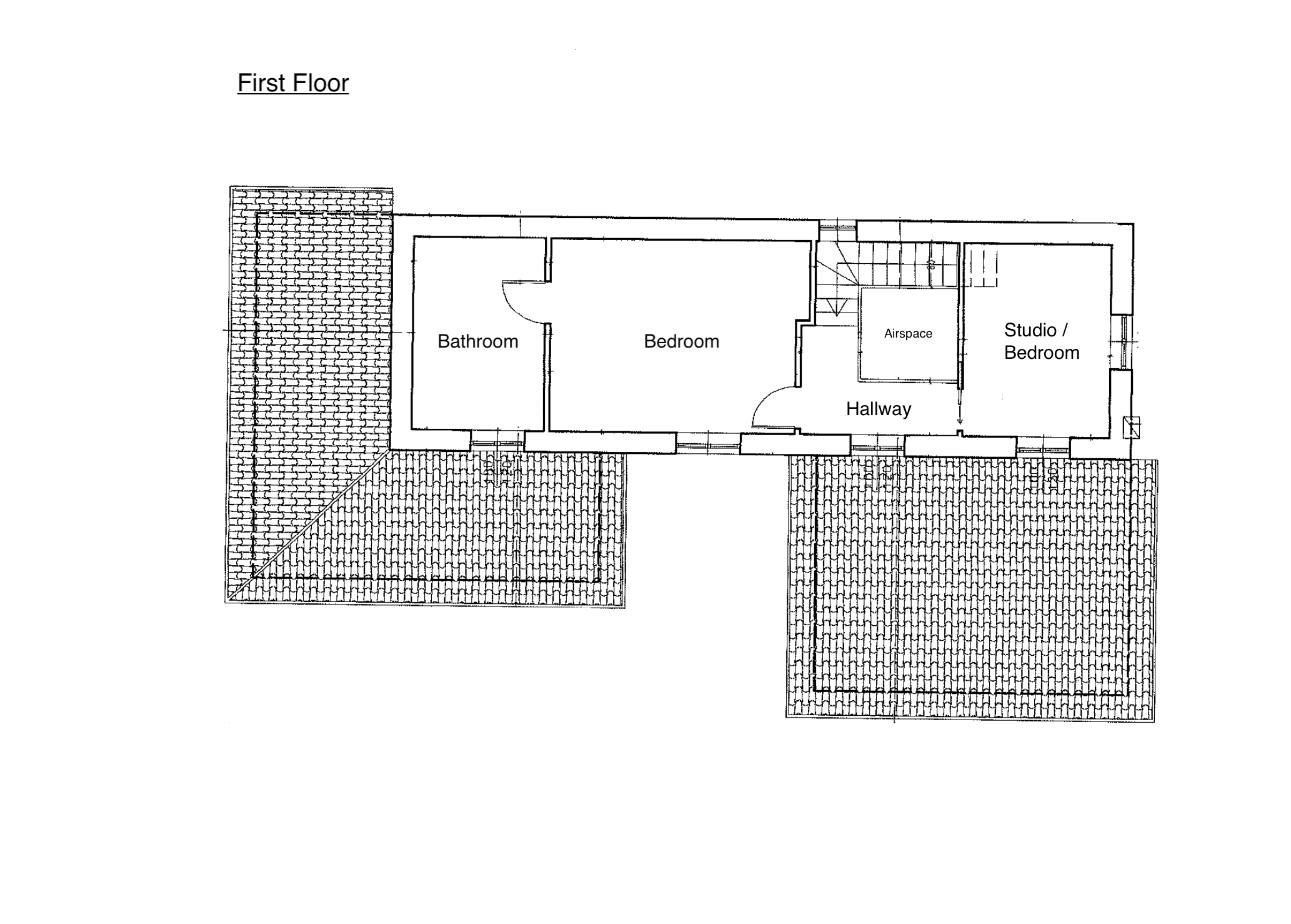
The upper floor accommodates the bedrooms. The master bedroom with floor to ceiling windows offers stunning views over the valley whilst the adjacent bathroom invites for a relaxing soak in its bathtub. On the opposite side of the hall is a small bedroom which is currently used as an office. The oak flooring provides a particularly comfortable atmosphere for the entire floor level.
The house is surrounded by several attractive terraces and charming sitting areas. Several fruit trees are dotted around the grounds as well as 65 cultivated olive trees. A charming greenhouse offers plenty of opportunities for every passionate gardener. The grounds are fully fenced in and there is the possibility to build a swimming pool.
The house was built to withstand earthquakes and was insulated with cork. The wooden windows and doors are fitted with break resistant double glazing. A 1000 l gas tank houses all gas supplies. The temperature on the ground and upper floor level can be regulated individually with thermostats. An air handling system provides air circulation on both floor levels. The grounds are connected to both, fresh water and irrigation water provided by separate tanks.
The picturesque village Apricale surrounded by green rolling hills and olive groves is well known for its authentic medieval centre. Here one can find a selection of good restaurants, cafes and a small shop to cover the daily needs as well as a post office, a tabaco shop and a pharmacy. Apricale benefits from a good infra structure and houses various cultural events throughout the year, culminating in the well-known theatre festival in August. The surroundings invite to be explored on foot or bike and a more glamorous lifestyle awaits on the neighbouring Cote d’Azur. The coastal towns Bordighera and Ventimiglia are only a 25 minute car journey away and Sanremo, Menton, Monte Carlo and the international airport Nice can be reached in less than one hour.
The grounds are connected with the communal road by a 100m quiet, narrow access road, the traditional Ligurian “mulattiera”. This is mostly cement with a level unpaved section. At the entrance gate there is parking, a 7m turning circle, and space to create additional parking. From the entrance gate, a small family car can reach the alternative parking area immediately behind the house via the rose-coloured cement drive.
Agency Commission
The commission is payable by the buyer and lies at 3.6% inclusive of VAT
Indirizzo
Apri su Google Maps-
Città: Apricale
-
Stato/regione: Ligurien
-
Zona: Imperia
-
Nazione: Italy
Dettagli
Updated on April 29, 2026 at 1:28 pm-
ID della proprietà AP 1010
-
Prezzo 615.000€
-
Dimensioni proprietà 113 m²
-
Superficie del Terreno 5000 m²
-
Camere da letto 2
-
Camere 4
-
Bagni 2
-
Anno di costruzione 2010
-
Tipo Country Houses, Villas
-
Stato Immobile For Sale
-
Condition As new
-
Sea distance 13 km
-
Nearest airport Nice 65 km
-
Util space 17 m²
Funzionalità
Classe Energetica
-
Classe energetica: C
-
Indice globale di rendimento energetico: 63,6130 kWh/m²a
- A+
- A
- B
- 63,6130 kWh/m²a | Classe energetica CC
- D
- E
- F
- G
- H
Annunci Simili
Dolceacqua – Country house with panoramic views
Charming country house with stunning panoramic views stretching all the way to the sea
Camporosso – South-facing country house for sale
A charming stone country house in a sunny location
Dolceacqua – Former oil mill for sale
A former oil mill in a sunny spot on the outskirts of Dolceacqua
Artallo (Imperia) – Villa with sea views for sale
Country-style villa in a sunny south-facing position with panoramic views of Porto Maurizio and the Mediterranean Sea






















